物件名
YANASE Ⅰ号棟
市区名
安中市郷原・嶺・簗瀬 簗瀬53-12
賃料
11万円
仲介手数料
1.1ヶ月
種別
一戸建て
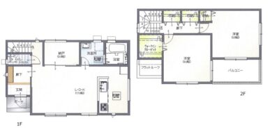
間取り
2LDK
各部屋詳細
部屋階数
2階建て
空室状況
敷金
11万円
礼金
11万円
保証会社
必須利用
火災保険
要加入
共益費
面積

