市区名
その他エリアその他富岡市妙義町八木連355
価格
300万円
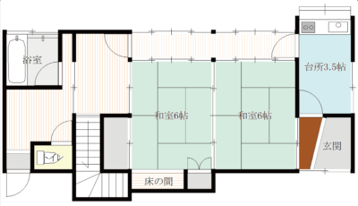
間取り
3K
築年月
1981年12月
土地面積
1628.07㎡
建物面積
87.41㎡
構造
木造2階建
地目
宅地
最寄駅
松井田
現況
家
都市計画
都市計画外
用途地域
無指定
容積率
なし
建蔽率
なし

